
Úrii 165 nm-es ház eladó
320 000 000
Ft1 939 394 Ft/m²
Kategória:
Feladás dátuma:
márc 12., 10:04Tulajdonságok
4 szoba
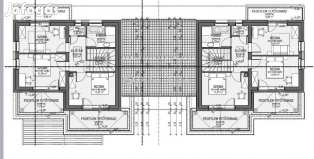
165 m²
Új építésű
hőszivattyú
1
tégla
Van
nem
Garázsban
750 m2
Tulajdonjog
2026
Leírás
Ez az ingatlan nem mindenkinek szól. Csak annak, aki pontosan tudja, mit akar!
Van egy pont az életben, amikor már nem akarod hallgatni a forgalom zaját. Nem vágysz már liftre, szomszédra, parkolóhely-keresésre. Inkább a saját kerted illatát szeretnéd érezni. A csendet. A tér szabadságát. Egy édeni kis faluban, ahol a csend maga a luxus, ahol a természet közelsége nem lemondás, hanem kiváltság itt épül meg ez a prémium villa, amely nem csupán egy ingatlan, hanem egy életminőségi szintlépés. Egy választás azoknak, akik tudják: a valódi luxus nem hivalkodik csak jelen van. Finoman. Magabiztosan.
Ez nem ház. Ez egy életérzés. Egy korty szabadság nap mint nap. 30 percre Budapesttől, de világokra a zajtól. Itt a csillagokat is látni. Saját medence, saját kert minden a tiéd. Aki ide jön, nem véletlenül talál rá. A ház, a kert, a látvány és a kivitelezés beszél helyetted. Ez nem egy újabb agglomerációs ikerház. Ez a hely különleges. Ahogy te is. Új életmód: minden nap olyan, mintha nyaralnál.
Belső terek, ahol az anyagok nem csak szépek hanem mesélnek. A Porcelanosa Orobico Dark kőburkolatú nappali hangsúlyfala olyan, mint egy festmény: selymesen fénylő, drámai textúrával. A MIRAGE Tavernit padlólapok természetes meleg tónusú, olasz prémium greslapok rusztikus eleganciájuk átfogja az egész házat.
A mennyezetet Shou Sugi Ban technikával kezelt lakkozott fenyő rönkök tartják, köztük rejtett LED világítással. Nem dizájnelem karakter.
Az üveglépcső feketefém rögzítéssel és süllyesztett LED-spottal minden este új fényjátékot játszik. Az üveg padlójú galérián állva úgy érezheti lebeg a nappali felett.
A padlószőnyeg a hálókban szállodai minőségű csak az tudja, mit jelent ez, aki mezítláb jár benne.
A konyha egyedi gyártású, szigetes 18mm vtg Egger H1330 ST10 Santa Fe Laminált Tölgy Vintage frontlapokkal, Slim Line kvarc kompozit 12mm vtg. Egger Kompakt, Pietra Grigia Fekete munkalappal.
Dupla Marmy Bergamo mosdók, VOVO okos-WC nem extra, hanem alap.
Antracit színű alumínium nyílászárók, 3 rétegű üvegezéssel, motoros zsalúziával és szúnyoghálóval mert a csendnek ára van.
Energetikai függetlenség napelem + energiatárolás. Smart vezérlés: mikor fűt, mikor tárol, mikor táplál vissza Ez az otthon nem fogyaszt gondoskodik magáról.
Mennyezeti hűtés-fűtés hőszivattyúval, légtechnikai rendszerrel láthatatlan minden, csak komfortot lehet érezni.
Frisslevegő-szabályozás magasabb szinten. Szenzor vezérelt légcsere CO, VOC, pára alapján automatikus bypass nyitás hűvös éjszakákon (passzív free cooling), zónás szellőztetés, ha a lakók külön élettérben tartózkodnak.
Smart Home vezérlés minden ott van, ahol kell, és pontosan akkor, amikor kell.
A hőmérséklet nem csak egy szám itt a komfortot az érzékelés vezérli.
Kert, ami estére életre kel.
Tavernit burkolatok a medence körül csúszásmentes, természetes hatású felület.
Saját, hőszivattyús fűtésű medence nemcsak látvány, hanem élmény.
Kettős zónás öntözőrendszer, automata tápadagolással a kert önmagát gondozza.
Fel-le sugárzó LED homlokzatfények este a ház új arcát mutatja.
A magas, zárt kerítés teljes intimitást biztosít mégis nyitott a térre, a fényre, a levegőre. Itt egyszerre élhető meg a társasági élet öröme és a magányos nyugalom méltósága.
Ez nem lakás. Ez státusz. Ez önazonosság. - Nem kérdés, hogy megéri-e. Csak az, hogy Ön lesz-e az, aki megengedi magának.
Hasonló ingatlanok
Ez is érdekelhet
Jófogás mobil applikáció
Keresett márkák
trabant
mini cooper
jbl
forza horizon 4
nintendo switch
samsung galaxy s10
lego friends
xbox one
husqvarna
mayo chix
iphone 11
iphone se
xiaomi mi 10
ps5
bonprix
bershka
tchibo
honfoglaló
kika
cropp
xiaomi redmi note 9 pro
miután
brawl stars
xbox series x
crystal nails
amerikai staffordshire terrier
iphone 11 pro
airpods
samsung tv
playstation 5
gamestar
iphone xr
apple watch
huawei p30 lite
samsung galaxy a51
iphone x
labrador
iphone 6s
husky
maine coon
ps4
iphone 7
iphone xs
ipad
iphone 8
Népszerű kategóriák
eladó lakás
monitor
téli gumi
ingyen elvihető
trambulin
elektromos roller
mosogatógép
puzzle
eladó lovak
laptop
eladó ház
okosóra
francia bulldog
használt autó
számológép
szinoníma szótár
konyhabútor
sakk
szájmaszk
halloween tök
mikrohullámú sütő
trapézlemez
adventi koszorú
elektromos kerékpár
kerti bútor
térkő
kávéfőző
számítógép
menyasszonyi ruha
futópad
gördeszka
tolóajtó
bluetooth fülhallgató
könnyűszerkezetes ház
dohányzóasztal
bejárati ajtó
kanapéágy
hintaágy
bicikli
diego szőnyeg
használt laptop
faház
hdmi kábel
aroma diffúzor
gáztűzhely
roller
tengerimalac
magaságyás
függőfotel





