Hirdetés

Jászfényszarui eladó 220 nm-es ház

company_logo

63 000 000

Ft

286 364 Ft/m²

Kategória:

Eladó; Ingatlan; Ház 

Feladás dátuma:

több, mint egy hónapja
Ingatlanközvetítő

Tulajdonságok

Szobák száma:
3 szoba

Méret:
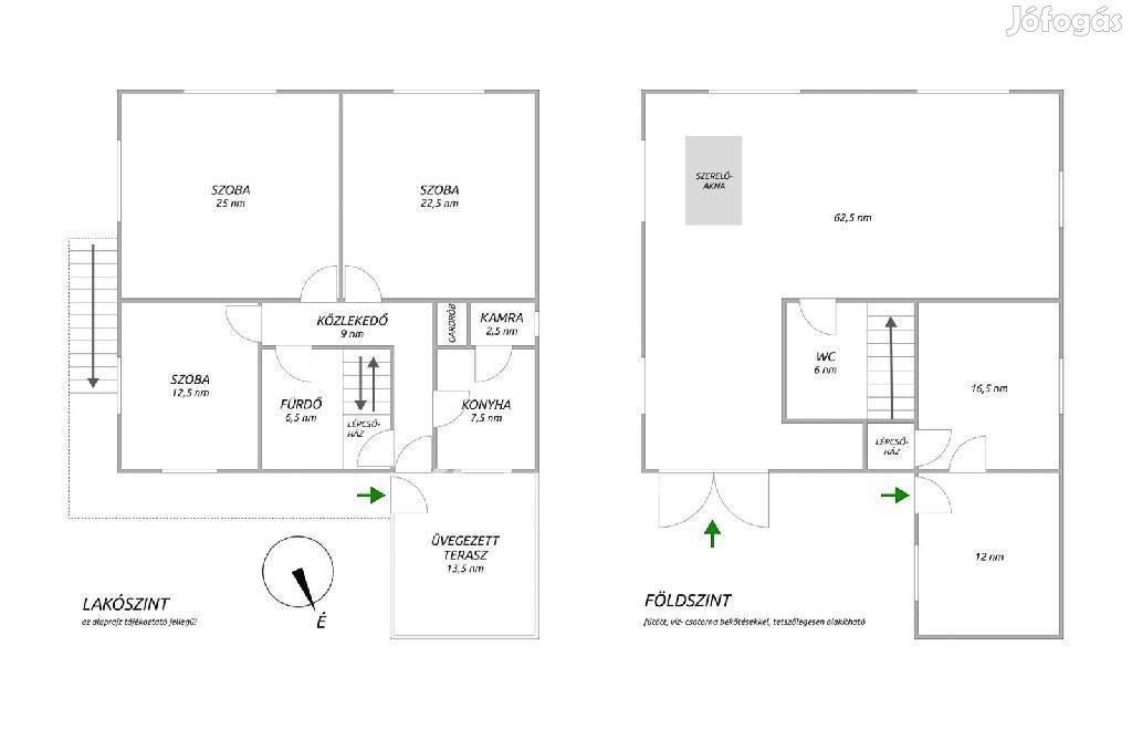
220 m²

Állapot:
Jó állapotú

Fűtés típusa:
gáz-cirkó

Szintek száma:
2

Ingatlan típusa:
tégla

Erkély, terasz:
Van

Bútorozott-e:
nem

Parkolás:
Teremgarázsban

Kert mérete:
840  m2

Tulajdonjog/ bérleti jog:
Tulajdonjog

Leírás

Jász-Nagykun-Szolnok vármegye, Jászfényszaru - kétszintes, részben felújított családi ház eladó!

Jászfényszaru központi, mégis csendes utcájában kínálok megvételre egy 110 nm-es, kétszintes, tégla építésű családi házat, amely rengeteg lehetőséget rejt magában. Az emeleti lakótérben három kényelmes szoba, konyha, kamra, fürdőszoba, közlekedő és egy hangulatos fedett terasz található. A földszinti rész jelenleg műhelyként és garázsként funkcionál, azonban kialakításának köszönhetően könnyedén átalakítható külön bejáratú lakássá, irodává vagy akár üzlethelyiséggé is.

Az ingatlan 10 cm-es hőszigeteléssel rendelkezik, tetőszerkezete cserép borítású. Az elmúlt években több ponton megújult: új tetőszerkezetet, külső szigetelést és modern nyílászárókat kapott, továbbá új villamos hálózat, ipari áram és térkövezett udvar is növeli értékét. A fűtésről gázkazán, vegyestüzelésű kazán és hűtő-fűtő klíma gondoskodik, így az otthon minden évszakban kellemes hőmérsékletet biztosít.

Ez a ház tökéletes választás mindazoknak, akik tágas, jól alakítható otthont keresnek nyugodt környezetben, ugyanakkor céges hasznosításra is kiválóan alkalmas.

Ingatlanvásárláshoz az OTP Bank kedvező hitelkonstrukcióit ajánlom.
Kérem, hívjon bizalommal - készséggel tájékoztatom a részletekről!

Hirdetés azonosító: 158881475

Kapcsolatfelvétel a Hirdetővel


Ingatlanközvetítő

Utoljára aktív: 38 napja

Megosztás

Jófogás mobil applikáció

Töltsd le Jófogás alkalmazásunkat!
Töltsd le alkalmazásunkat!

Keress és válogass közel másfélmillió hirdetés közül bárhol is vagy!

Töltsd le alkalmazásunkat iOS-re
Töltsd le alkalmazásunkat Androidra
Töltsd le alkalmazásunkat Huawei-re

A Jófogást megtalálod a közösségi oldalakon is!

Jofogas FacebookJofogas InstagramJofogas YoutubeJofogas LinkedIn