
EXKLUZÍV OTTHONOK A HATVANUTCAI-KERTBEN
149 900 000
Ft1 006 040 Ft/m²
Cím:
Kategória:
Feladás dátuma:
több, mint egy hónapjaTulajdonságok
4 szoba
149 m²
Új építésű
2
tégla
Van
Garázsban
208 m2
kevesebb mint 6 hónapon belül
Tulajdonjog
2026
Leírás
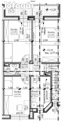
Debrecen kedvelt részén, a Hatvan utcai kert csendes, új építésű övezetében, magas műszaki tartalommal rendelkező, jó elrendezésű, kétszintes, sorházi lakások eladók. Az ingatlanok nappali + 3 szobásak, dupla komfortúak, a földszinten garázzsal, terasszal, és önálló kertkapcsolattal. Illeték mentes vásárlás, kedvező hitelkonstrukció és vásárlási feltételek.
Az egyedi kialakítású, napfényes lakás nappali + 3 szobás, kétszintes és kertkapcsolatos:
földszinten: nappali-konyha-étkező, előszoba, wc-kézmosóval és garázs
I. emeleten: 3 db közlekedőből külön nyíló hálószoba és háztartási helyiség
2-es lakás
Magas műszaki tartalom akár egyedi igényekre szabva:
- külső falak Porotherm 30 cm tégla, homlokzati 10 cm grafitos hőszigeteléssel, az egyes sorházak között és a két szélső tűzfalon ásványgyapot szigeteléssel
- a földszint padlólemezében 12 cm lépésálló EPS szigetelés, míg az emeleten 5cm lépésálló EPS szigetelés
- padlásfödém hőszigetelése szálas ásványgyapot szigetelés 30cm vastagságban
- 3 rétegű üvegezésű 6 légkamrás műanyag nyílászárók
- elektromos alumínium redőnyök egyedileg is vezérelhető távirányítással
- mennyezethűtés
- levegő-víz hőszivattyú padlófűtéssel és mennyezethűtéssel
- H-tarifa 3X16A
- riasztó rendszer telepítéséhez szükséges vezeték és hálózat telepítés
- Távvezérelhető, hőszigetelt, szekcionált garázskapuk barna színben, 2 db távirányítóval
- kertkapcsolat
- várható átadás 2026 szeptember
További kérdéseire állok rendelkezésére, hívjon a hét bármelyik napján.
Kapcsolatfelvétel a Hirdetővel
Megosztás
Hasonló ingatlanok
Ez is érdekelhet
Jófogás mobil applikáció
Keresett márkák
trabant
mini cooper
jbl
forza horizon 4
nintendo switch
samsung galaxy s10
lego friends
xbox one
husqvarna
mayo chix
iphone 11
iphone se
xiaomi mi 10
ps5
bonprix
bershka
tchibo
honfoglaló
kika
cropp
xiaomi redmi note 9 pro
miután
brawl stars
xbox series x
crystal nails
amerikai staffordshire terrier
iphone 11 pro
airpods
samsung tv
playstation 5
gamestar
iphone xr
apple watch
huawei p30 lite
samsung galaxy a51
iphone x
labrador
iphone 6s
husky
maine coon
ps4
iphone 7
iphone xs
ipad
iphone 8
Népszerű kategóriák
eladó lakás
monitor
téli gumi
ingyen elvihető
trambulin
elektromos roller
mosogatógép
puzzle
eladó lovak
laptop
eladó ház
okosóra
francia bulldog
használt autó
számológép
szinoníma szótár
konyhabútor
sakk
szájmaszk
halloween tök
mikrohullámú sütő
trapézlemez
adventi koszorú
elektromos kerékpár
kerti bútor
térkő
kávéfőző
számítógép
menyasszonyi ruha
futópad
gördeszka
tolóajtó
bluetooth fülhallgató
könnyűszerkezetes ház
dohányzóasztal
bejárati ajtó
kanapéágy
hintaágy
bicikli
diego szőnyeg
használt laptop
faház
hdmi kábel
aroma diffúzor
gáztűzhely
roller
tengerimalac
magaságyás
függőfotel





