
SZÁR - ÚJONNAN ÉPÜLŐ CSALÁDI
94 762 000
FtCím:
Feladás dátuma:
több, mint egy hónapjaTulajdonságok
Van
Leírás
Sorszám: 26-4152
SZÁR - ÚJONNAN ÉPÜLŐ CSALÁDI HÁZ ELADÓ!
KIZÁRÓLAG A HOME&HOME INGATLAN KÍNÁLATÁBAN!
(A. ház)
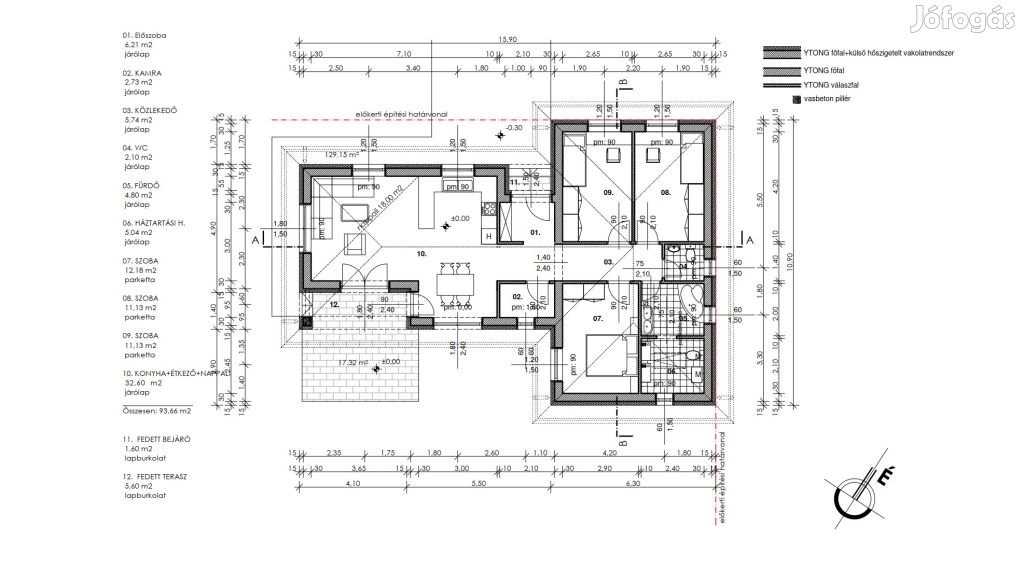
Home&home Ingatlan eladásra kínál SZÁR csendes utcájában egy 111 nm-es (94 nm + 17 nm), 3 szoba + nappalis, teraszos, saját gépkocsi beállóval rendelkező újonnan épülő egyszintes családi házat, 500 m2-es telken.
Műszaki tartalom: - 30-as ytong tégla
- hőszivattyús fűtés (10 kWos, levegő-víz rendszerű) energiatakarékos, fenntartható megoldás
- padlófűtés
- betongerendás
- fürdőszobákban plusz törölközőszárítós radiátor
- kerámia és vinyl burkolatok
- 6 légkamrás profilú, 3 réteg hőszigetelt üvegezésű műanyag nyílászárók
- H-tarifa
- klíma
- 15 cm-es külső hőszigetelés
- szürke lábazati vakolat
- törtfehér nemesvakolat
- szürke cserépfedés
- szürke bádogelemek
- szürke kőburkolat
- H-tarifa
- riasztó kicsővezése
- klímaberendezés (nappaliba)
- lehetőség egyedi igényekhez igazított befejezésre
Hőszivattyú gondoskodik télen a fűtésről, nyáron a hűtésről.
Ezzel a fűtési rendszerrel biztos az alacsony rezsi költség.
Az ingatlan a mai építészet szellemében, a gazdaságosság, funkcionalitás és a fenntarthatóság irányát követve épül.
Építkezés kezdete: 2026. áprilisa
Kulcsrakész átadás:
- 2027. II. negyedév
Ár.: 94.762.000.- Ft + áfa (5%)
(Bruttó 99.500.000.- Ft)
Szár településről az M1-es autópálya könnyen
megközelíthető, emellett mind volán, mind pedig vasúti közlekedésre is van lehetőség.
Irodánk teljes körű hitel ügyintézést, bankfüggetlen tanácsadást és CSOK-ügyintézést kínál ingyen, az Ön igényeihez szabva.
Amennyiben további kérdése merülne fel az ingatlannal kapcsolatban, kérem forduljon hozzám bizalommal!
Kapcsolatfelvétel a Hirdetővel
Megosztás
Hasonló ingatlanok
Ez is érdekelhet
Jófogás mobil applikáció
Keresett márkák
trabant
mini cooper
jbl
forza horizon 4
nintendo switch
samsung galaxy s10
lego friends
xbox one
husqvarna
mayo chix
iphone 11
iphone se
xiaomi mi 10
ps5
bonprix
bershka
tchibo
honfoglaló
kika
cropp
xiaomi redmi note 9 pro
miután
brawl stars
xbox series x
crystal nails
amerikai staffordshire terrier
iphone 11 pro
airpods
samsung tv
playstation 5
gamestar
iphone xr
apple watch
huawei p30 lite
samsung galaxy a51
iphone x
labrador
iphone 6s
husky
maine coon
ps4
iphone 7
iphone xs
ipad
iphone 8
Népszerű kategóriák
eladó lakás
monitor
téli gumi
ingyen elvihető
trambulin
elektromos roller
mosogatógép
puzzle
eladó lovak
laptop
eladó ház
okosóra
francia bulldog
használt autó
számológép
szinoníma szótár
konyhabútor
sakk
szájmaszk
halloween tök
mikrohullámú sütő
trapézlemez
adventi koszorú
elektromos kerékpár
kerti bútor
térkő
kávéfőző
számítógép
menyasszonyi ruha
futópad
gördeszka
tolóajtó
bluetooth fülhallgató
könnyűszerkezetes ház
dohányzóasztal
bejárati ajtó
kanapéágy
hintaágy
bicikli
diego szőnyeg
használt laptop
faház
hdmi kábel
aroma diffúzor
gáztűzhely
roller
tengerimalac
magaságyás
függőfotel





