
Röppentyű utca újépítésű nappali + 2 hálószobás
413 000
Ft5 658 Ft/m²
Feladás dátuma:
márc 5., 13:11Tulajdonságok
3 szoba
73 m²
Új építésű
1
Van
panel
utcai
Nincs
Teremgarázsban
Gépesített
Leírás
13. kerület modern lakóparkjában, a Röppentyű utcában található Divinus Lakóparkban kínálunk bérlésre egy 1. emeleti, nappali +2 hálószobás, kiváló állapotú lakást.
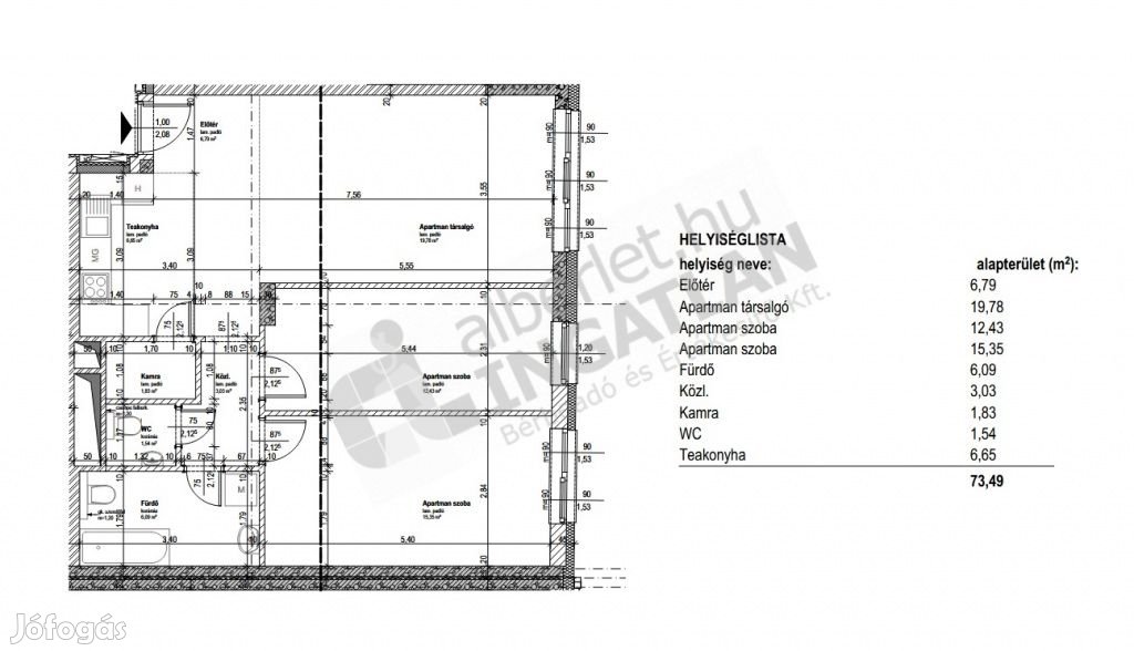
A 73 nm alapterületű ingatlan kialakítása átgondolt, terei világosak és harmonikusak, így valódi nyugalmat és kényelmet biztosít a mindennapokban.
Az alaprajz valós, a lakásról készült. Azonban a fotókon egy mintalakás látható.
A lakás bútorozott és gépesített. A modern konyha sütővel, főzőlappal, hűtővel, szagelszívóval és mosogatógéppel felszerelt, valamint mosógép és klímaberendezés is található a lakásban.
Az ingatlan minimum 1 évre bérelhető, közjegyző által hitelesített bérleti szerződéssel.
A bérlés feltétele 2,5 havi kaució és munkáltatói jövedelemigazolás bemutatása.
Kisállattal történő költözés esetén 3 havi kaució szükséges.
Az épület mélygarázsában különböző méretű parkolóhelyek bérelhetők havi 30 000 - 40 000 forintos bérleti díjért, emellett zárható tárolóhelyiség is igénybe vehető 25 négyzetméteres méretben, melynek havi díja 15 000 - 30 000 forint.
A lakás a képeken látható, kifogástalan állapotban, berendezve és teljesen gépesítve kerül átadásra.
A Divinus Lakópark letisztult, rendezett környezetet kínál, ahol a városi élet kényelme és a nyugodt lakhatás tökéletes egyensúlyban van. A környék infrastruktúrája kiváló, a közelben megtalálhatók üzletek, bevásárlóközpontok, éttermek, kávézók, valamint a tömegközlekedési kapcsolatok is gyors és kényelmes elérést biztosítanak a város bármely pontja felé. A zöldfelületek és sétára alkalmas környezet tovább növelik az itt élők komfortérzetét, ezért az ingatlan ideális választás pároknak, családoknak, illetve azok számára, akik igényes, mégis nyugodt otthont keresnek.
**ENGLISH**
In the modern residential park of the 13th district, in the Divinus Lakópark, located on Röppentyű Street, we offer for rent a 1st floor, living room + 2 bedrooms, excellent condition apartment.
The design of the 73 sqm property is well thought out, its spaces are bright and harmonious, thus providing real peace and comfort in everyday life.
The floor plan is real, it is made of the apartment. However, the photos show a model apartment.
The apartment is furnished and mechanized. The modern kitchen is equipped with an oven, hob, refrigerator, extractor hood and dishwasher, and there is also a washing machine and air conditioning in the apartment.
The property can be rented for a minimum of 1 year, with a lease contract certified by a notary.
The condition for renting is a 2.5 month deposit and presentation of an employer's income certificate.
In case of moving with a pet, a 3 month deposit is required.
In the underground garage of the building, parking spaces of various sizes can be rented for a monthly rent of 30,000 - 40,000 forints, and a lockable storage room of 2-5 square meters is also available, the monthly fee of which is 15,000 - 30,000 forints.
The apartment is in impeccable condition, furnished and fully mechanized, as shown in the pictures.
Divinus Lakópark offers a clean, tidy environment, where the comfort of city life and peaceful living are in perfect balance. The infrastructure of the area is excellent, there are shops, shopping centers, restaurants, cafes nearby, and public transport connections provide quick and convenient access to any point of the city. The green spaces and walkable environment further increase the comfort of those living here, which is why the property is an ideal choice for couples, families, and those who are looking for a sophisticated yet peaceful home.
Kapcsolatfelvétel a Hirdetővel
Megosztás
Hasonló ingatlanok
Ez is érdekelhet
Jófogás mobil applikáció
Keresett márkák
trabant
mini cooper
jbl
forza horizon 4
nintendo switch
samsung galaxy s10
lego friends
xbox one
husqvarna
mayo chix
iphone 11
iphone se
xiaomi mi 10
ps5
bonprix
bershka
tchibo
honfoglaló
kika
cropp
xiaomi redmi note 9 pro
miután
brawl stars
xbox series x
crystal nails
amerikai staffordshire terrier
iphone 11 pro
airpods
samsung tv
playstation 5
gamestar
iphone xr
apple watch
huawei p30 lite
samsung galaxy a51
iphone x
labrador
iphone 6s
husky
maine coon
ps4
iphone 7
iphone xs
ipad
iphone 8
Népszerű kategóriák
eladó lakás
monitor
téli gumi
ingyen elvihető
trambulin
elektromos roller
mosogatógép
puzzle
eladó lovak
laptop
eladó ház
okosóra
francia bulldog
használt autó
számológép
szinoníma szótár
konyhabútor
sakk
szájmaszk
halloween tök
mikrohullámú sütő
trapézlemez
adventi koszorú
elektromos kerékpár
kerti bútor
térkő
kávéfőző
számítógép
menyasszonyi ruha
futópad
gördeszka
tolóajtó
bluetooth fülhallgató
könnyűszerkezetes ház
dohányzóasztal
bejárati ajtó
kanapéágy
hintaágy
bicikli
diego szőnyeg
használt laptop
faház
hdmi kábel
aroma diffúzor
gáztűzhely
roller
tengerimalac
magaságyás
függőfotel





