
Eladó 73 nm-es Üdülő, nyaraló Miskolc
5 990 000
Ft82 055 Ft/m²
Kategória:
Feladás dátuma:
tegnap, 09:57Tulajdonságok
4 szoba
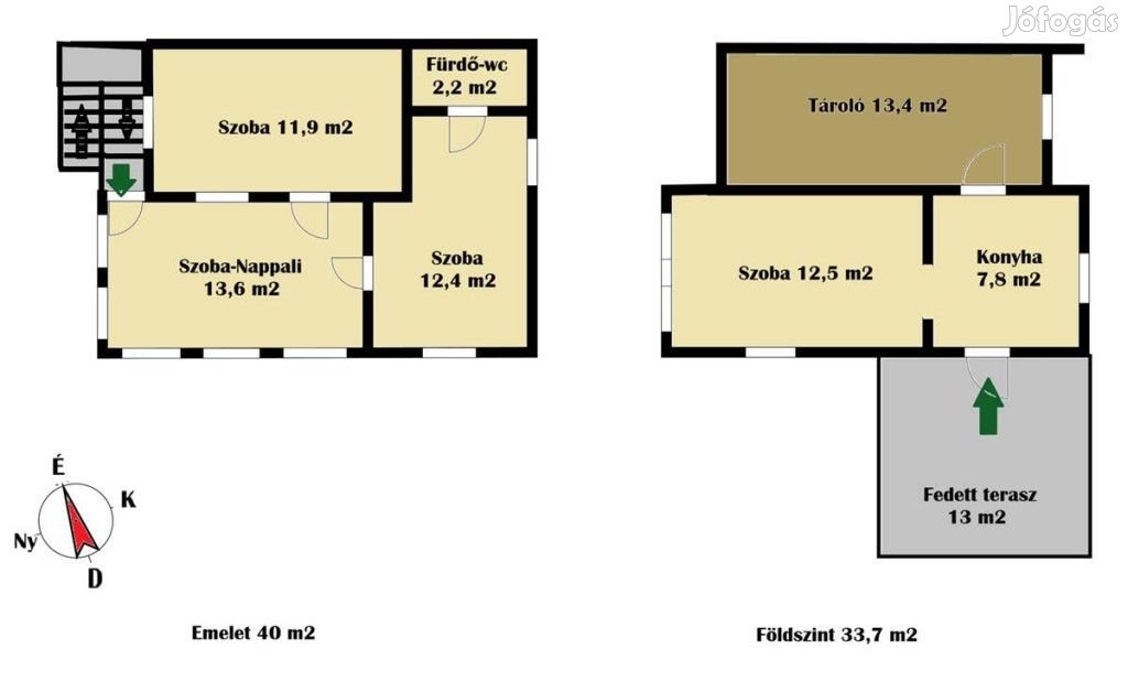
73 m²
Jó állapotú
egyéb
1
Nincs
egyéb
utcai
Nincs
nem
Utcán
746 m2
Tulajdonjog
Leírás
Miskolctapolcán, a Barlangfürdőtől pár kilométerre jó állapotú nyaraló eladó. A 73 m2-es, 4 szobás zártkerti ingatlan, a Család utcában található.
Az épület konyhával, 4-szobával, és fürdőszobával, valamint egy fedett terasszal várja új tulajdonosát.
A nyaraló egy 746 m2-es telken található, a Brassói utca végétől mindössze 600 méterre. A Miskolctapolcáról, Kisgyőrbe vezető új kerékpárút szomszédságában.
A telek jelenleg elhanyagolt, de több gyümölcsfával, fenyővel, tujával, rózsával beültetett, anno szebb időket látott.
Az épület jó állapotú. Szilikát falazattal, hagyományos fa nyílászárókkal, és hullámpala fedéssel készült, vasbeton födémmel a szintek között.
Említést érdemlő extrák:
- Remek Déli tájolású épület.
- Világos tágas terekkel rendelkező lakórész.
- Kandalló.
- Gáz konvektor. (palackról).
- Cserépkályha.
- 2 db fúrt kút.
- Panoráma. Gyönyörű kilátással a Bükk hegységre.
- Villanybojler biztosítja a meleg víz-ellátást.
- Fürdőszoba wc kialakítva.
- Szép állapotú hideg, és meleg burkolatok.
- Igény esetén teljes berendezéssel a kiírt vételáron.
- Stabil szerkezetű beton, szilikát falazat.
- Remek elhelyezkedés, könnyen elérhető üdülőterület. Natura 2000 övezet.
- Biztonságos, lakott környék.
A hozzá vezető út télen -nyáron könnyen megközelíthető. Szomszédságban lakóházakkal. Biztonságos, lakott környezetben.
Közművek közül a villany van bekötve. A vízellátás jelenleg nem működik. De egy házi vízmű segítségével a meglévő fúrt kútról kialakítható.
Kivont terület, és gazdasági épület megnevezésű.
Azonnal birtokba vehető! Per és teher mentes ingatlan, mely most remek áron megvásárolható!
Igény esetén teljes berendezéssel akciós áron megvásárolható. Akár hitelre is.
További információért hívjon az elérhetőségeimen!
Hasonló ingatlanok
Ez is érdekelhet
Jófogás mobil applikáció
Keresett márkák
trabant
mini cooper
jbl
forza horizon 4
nintendo switch
samsung galaxy s10
lego friends
xbox one
husqvarna
mayo chix
iphone 11
iphone se
xiaomi mi 10
ps5
bonprix
bershka
tchibo
honfoglaló
kika
cropp
xiaomi redmi note 9 pro
miután
brawl stars
xbox series x
crystal nails
amerikai staffordshire terrier
iphone 11 pro
airpods
samsung tv
playstation 5
gamestar
iphone xr
apple watch
huawei p30 lite
samsung galaxy a51
iphone x
labrador
iphone 6s
husky
maine coon
ps4
iphone 7
iphone xs
ipad
iphone 8
Népszerű kategóriák
eladó lakás
monitor
téli gumi
ingyen elvihető
trambulin
elektromos roller
mosogatógép
puzzle
eladó lovak
laptop
eladó ház
okosóra
francia bulldog
használt autó
számológép
szinoníma szótár
konyhabútor
sakk
szájmaszk
halloween tök
mikrohullámú sütő
trapézlemez
adventi koszorú
elektromos kerékpár
kerti bútor
térkő
kávéfőző
számítógép
menyasszonyi ruha
futópad
gördeszka
tolóajtó
bluetooth fülhallgató
könnyűszerkezetes ház
dohányzóasztal
bejárati ajtó
kanapéágy
hintaágy
bicikli
diego szőnyeg
használt laptop
faház
hdmi kábel
aroma diffúzor
gáztűzhely
roller
tengerimalac
magaságyás
függőfotel





