Hirdetés

Új építésű 3 szobás lakás eladó

company_logo

68 300 000

Ft

989 855 Ft/m²

Cím:

Baranya; Pécs; Mecsekoldal/Rigóder

Kategória:

Eladó; Ingatlan; Lakás 

Feladás dátuma:

több, mint egy hónapja
Ingatlanközvetítő

Tulajdonságok

Szobák száma:
3 szoba

Méret:
69 m²

Állapot:
Új építésű

Fűtés típusa:
gáz-cirkó

Emelet:
1

Lift:
Nincs

Ingatlan típusa:
tégla

Kilátás:
panoráma

Erkély, terasz:
Van

Parkolás:
Teremgarázsban

Tulajdonjog/ bérleti jog:
Tulajdonjog
Építés éve:
Nincs adat

Leírás

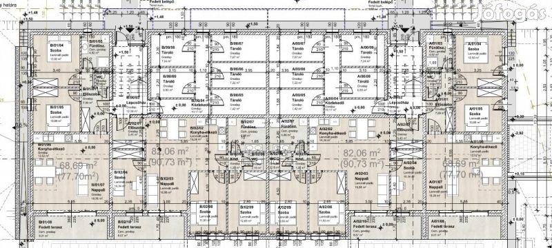
Eladásra kínálunk Pécsett a Rigóder városrészben egy 11 lakásos új építésű társasházban modern stílusú 3 szobás földszinti lakást.

Konyha-étkező nappali 2 hálószobás lakáshoz tartozik egy 9 m2-es terasz .

Az épület tégla szerkezetű, 20 cm grafitos külső hőszigeteléssel, festett alumínium, motoros redőnnyel szerelt , három rétegű üvegezésű ablakokkal.
Az épület mentes a hagyományos gázellátástól,és csakis a hőszivattyús rendszer az épület fűtését és a melegvizét előállítani.
A tetőszinten kialakított gépészeti térben kerül elhelyezésre a hőközpont ,mely a teljes épületet látja el fűtés/hűtés energiával és melegvízzel.
A fűtés padlófűtéssel megoldott, a hűtésre oldalfali fan-coil kerül beépítésre.
A lakások szellőzését központi szellőztető rendszer biztosítja.

A lakásban a nappaliban ,szobákban parketta,illetve kerámialap burkolatok igény szerint a beruházó által javasolt magas műszaki tartalomban foglalt árkategórián belül szintén szabadon választhatók.
Modern minőségi burkolatokkal ellátott fürdő-WC-k kerül kialakításra,melyben egy törölközőszárítós radiátor is elhelyésre kerül.
Az ár a konyhabútort és gépeket nem tartalmazza.
A lakáshoz igény esetén külön teremgarázs hely is vásárolható ,melynek ára 5 000 000 Ft.
A lakáshoz közös használatú terasz is tartozik, melyet az ár tartalmaz.
A társasház a város csendes nyugodt , közkedvelt részén a Rigóder városrészben található.
A tervezett átadás időpontja: 2025. III-IV negyedév.
B03

Hirdetés azonosító: 157606736

Kapcsolatfelvétel a Hirdetővel

Profilkép
Papp Beáta Anna

Great Home Franchise Kft

További hirdetései

Ingatlanközvetítő

Utoljára aktív: 44 napja

Megosztás

Jófogás mobil applikáció

Töltsd le Jófogás alkalmazásunkat!
Töltsd le alkalmazásunkat!

Keress és válogass közel másfélmillió hirdetés közül bárhol is vagy!

Töltsd le alkalmazásunkat iOS-re
Töltsd le alkalmazásunkat Androidra
Töltsd le alkalmazásunkat Huawei-re

A Jófogást megtalálod a közösségi oldalakon is!

Jofogas FacebookJofogas InstagramJofogas YoutubeJofogas LinkedIn