
105 nm-es ház eladó Hosszúhetény
97 000 000
Ft923 810 Ft/m²
Cím:
Feladás dátuma:
márc 26., 20:57Tulajdonságok
3 szoba
105 m²
Felújított
hőszivattyú
1
tégla
Nincs
nem
Teremgarázsban
1149 m2
Tulajdonjog
Légkondicionáló
Leírás
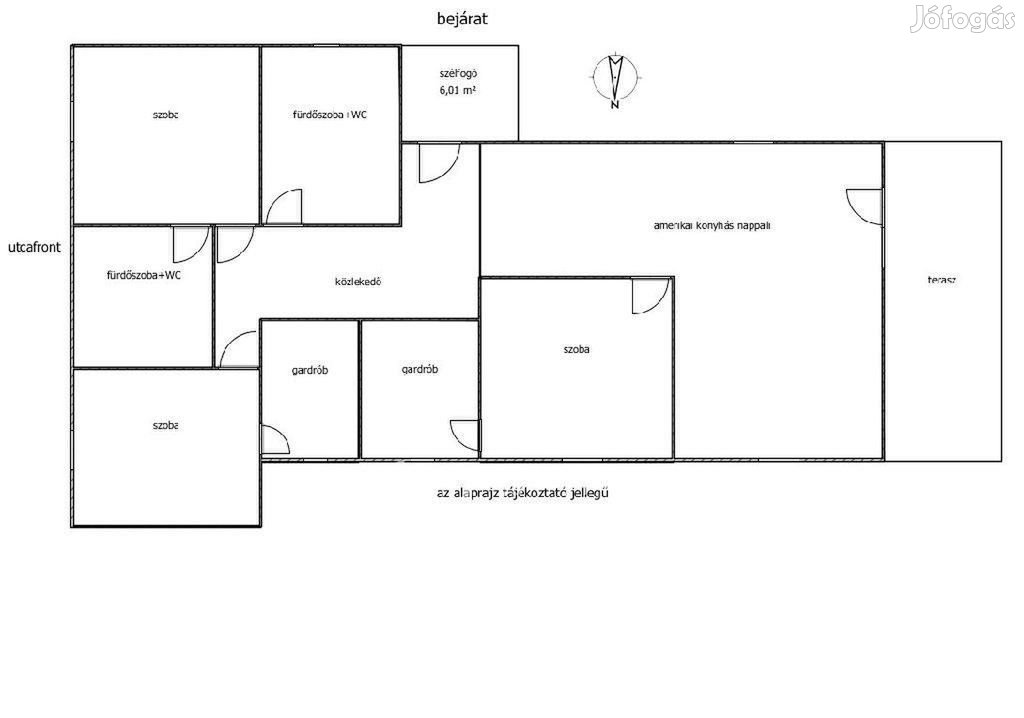
105 négyzetméteres ház eladó Hosszúhetényben a központ közelében!
Pontosabban 2026-2027-ben fog elkészülni a teljes felújítás. Egy minden részében felújított ház lesz belőle.
3 szoba lesz, 2 gardróbbal. A két gardrób igény szerint újabb szobává alakítható át. Lehetőség van más megoldásra is, a belső választófalak igény szerint átrakhatók.
2 db fürdőszoba + WC lesz kialakítva, az egyik a nagyhálóból nyílik káddal, a másik a közlekedőből tusolóval.
Egy amerikai konyhás nappali lesz kialakítva. A megfelelő csatlakozások (víz, szennyvíz, villany) ki lesznek alakítva, de a konyabútort nem építi be az építő cég. A mennyiben az új tulajdonos kéri, az is megteszi. Olyan méretű, és elrendezésű, valamint gépesítettségű konyha lesz, amit az új tulajdonos kér. Itt klíma is lesz felszerelve (igény szerint máshova is lehet). Innen lehet kimenni a teraszra, ami az udvar felé nyílik, ami 1149 négyzetméteres a házzal együtt.
Minden burkolóanyag (csempe, járólap, laminált padló) új lesz. Az új tulajdonos megválaszthatja a színt, és a minőséget. Amennyiben a betervezett jó minőségi szint fölé szeretne menni az új tulajdonos, arra is lesz lehetőség az árkülönbözet kifizetése után.
A fűtés hőszivattyús rendszerrel lesz kialakítva padlófűtéssel. Teljesen új vezetékek lesznek mindenütt, úgy, hogy az estlegesen később felszerelésre kerülő napelem rendszer fogadására is ki lesz építve. Mivel a gázcsonk a kerítésen belül van, akár gáz cirkófűtés is lehetséges.
Új lesz a tető, az összes fal téglából lesz 15 centiméteres hűszigetelő burkolattal. Minden nyílászáró új lesz. A külsők hőszigetelt műanyagból, elektromos redőnyökkel, és szúnyoghálóval lesznek felszerelve.
Az udvarban egy féltetős kialakítású garázs lesz kialakítva. Sok melléképület van, szerszámok. kerékpárok, babakocsik tárolására, vagy gazdálkodásra. Egy kút is van az udvarban, amivel az öntözést lehet megoldani.
Amennyiben az új tulajdonos megveszi az ingatlant, fel lesz gyorsítva a felújítás, fél év múlva kulcsátadás.
Referenciaszám: M325548
97000000 Ft
Kapcsolatfelvétel a Hirdetővel
Megosztás
Hasonló ingatlanok
Ez is érdekelhet
Jófogás mobil applikáció
Keresett márkák
trabant
mini cooper
jbl
forza horizon 4
nintendo switch
samsung galaxy s10
lego friends
xbox one
husqvarna
mayo chix
iphone 11
iphone se
xiaomi mi 10
ps5
bonprix
bershka
tchibo
honfoglaló
kika
cropp
xiaomi redmi note 9 pro
miután
brawl stars
xbox series x
crystal nails
amerikai staffordshire terrier
iphone 11 pro
airpods
samsung tv
playstation 5
gamestar
iphone xr
apple watch
huawei p30 lite
samsung galaxy a51
iphone x
labrador
iphone 6s
husky
maine coon
ps4
iphone 7
iphone xs
ipad
iphone 8
Népszerű kategóriák
eladó lakás
monitor
téli gumi
ingyen elvihető
trambulin
elektromos roller
mosogatógép
puzzle
eladó lovak
laptop
eladó ház
okosóra
francia bulldog
használt autó
számológép
szinoníma szótár
konyhabútor
sakk
szájmaszk
halloween tök
mikrohullámú sütő
trapézlemez
adventi koszorú
elektromos kerékpár
kerti bútor
térkő
kávéfőző
számítógép
menyasszonyi ruha
futópad
gördeszka
tolóajtó
bluetooth fülhallgató
könnyűszerkezetes ház
dohányzóasztal
bejárati ajtó
kanapéágy
hintaágy
bicikli
diego szőnyeg
használt laptop
faház
hdmi kábel
aroma diffúzor
gáztűzhely
roller
tengerimalac
magaságyás
függőfotel





