
Kadafalva határán, a Határ út közelében új családi ház eladó!
89 900 000
Ft864 423 Ft/m²
Feladás dátuma:
több, mint egy hónapjaTulajdonságok
4 szoba
104 m²
Új építésű
egyéb
1
tégla
Nincs
nem
Utcán
846 m2
Tulajdonjog
2025
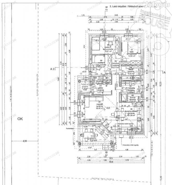
Leírás
Kadafalvahatárán, a Határ út közvetlen közelében, új építésű családi házak szomszédságában, 846 m2-es telken épülő, nappali + 3 szobás családi ház eladó
Jellemzők:
telekméret: 846 m2, egyszerű drótkerítéssel bekerített,
közmű: villany és városi víz, gáz az utcában
Lakótér mérete: bruttó 149,52 m2 nettó 104,17 m2
Fedett előtér és a terasz mérete együttesen: 18,38 m2
Helyiségek:
előtér (5,37 m2), folyosó (6,71m2), WC (1,8 m2), fürdő (6,83m2), Ht helyiség (6,58m2),
konyha + étkező (21,56m2), nappali (19,4m2), kamra (2,39m2), szoba1(10,1 m2), szoba2(10,81m2), szoba3 (12,68m2)
Burkolatok: kerámia és laminált parketta
Tetőszerkezet: ácsolt
Falazat: síkra csiszolt Wienerberger tégla, 15 cm-es homlokzat szigeteléssel
Fűtés: hőszivattyú
Nyílászárók: fehér műanyag, 3 rétegű üveggel
Burkolatok: választhatók, 7.000.- Ft/m2-ig
Fedett kocsibeálló fagerendából ácsolt / ár tartalmazza /
Osztatlan közös tulajdonú telken belső telekhányadon történik az építkezés, a bejárat murvával szórt
Vételár nem tartalmazza: Konyhabútort, kertrendezést
Átadás várható időpontja: 2026. JÚNIUS
Figyelem az adatlap megbízótól kapott adatok alapján készült, pontosságáért felelősséget vállalni nem tudunk !
A HOUSE36 kínálatában található összes ingatlannal kapcsolatban tudok felvilágosítást nyújtani !
Hívjon bizalommal !
Szolgáltatásaink Kereső Ügyfeleink számára INGYENESEK !
Hasonló ingatlanok
Ez is érdekelhet
Jófogás mobil applikáció
Keresett márkák
trabant
mini cooper
jbl
forza horizon 4
nintendo switch
samsung galaxy s10
lego friends
xbox one
husqvarna
mayo chix
iphone 11
iphone se
xiaomi mi 10
ps5
bonprix
bershka
tchibo
honfoglaló
kika
cropp
xiaomi redmi note 9 pro
miután
brawl stars
xbox series x
crystal nails
amerikai staffordshire terrier
iphone 11 pro
airpods
samsung tv
playstation 5
gamestar
iphone xr
apple watch
huawei p30 lite
samsung galaxy a51
iphone x
labrador
iphone 6s
husky
maine coon
ps4
iphone 7
iphone xs
ipad
iphone 8
Népszerű kategóriák
eladó lakás
monitor
téli gumi
ingyen elvihető
trambulin
elektromos roller
mosogatógép
puzzle
eladó lovak
laptop
eladó ház
okosóra
francia bulldog
használt autó
számológép
szinoníma szótár
konyhabútor
sakk
szájmaszk
halloween tök
mikrohullámú sütő
trapézlemez
adventi koszorú
elektromos kerékpár
kerti bútor
térkő
kávéfőző
számítógép
menyasszonyi ruha
futópad
gördeszka
tolóajtó
bluetooth fülhallgató
könnyűszerkezetes ház
dohányzóasztal
bejárati ajtó
kanapéágy
hintaágy
bicikli
diego szőnyeg
használt laptop
faház
hdmi kábel
aroma diffúzor
gáztűzhely
roller
tengerimalac
magaságyás
függőfotel





